Diseño de Lavanderías
Diseñamos el proyecto completo de tu lavandería autoservicio, incluyendo ingeniería y arquitectura, especialmente enfocado en edificios por construir, u otros.
Ofrecemos una asesoría integral y sin costo para inmobiliarias y constructoras, acompañándolas en cada etapa del desarrollo del proyecto.
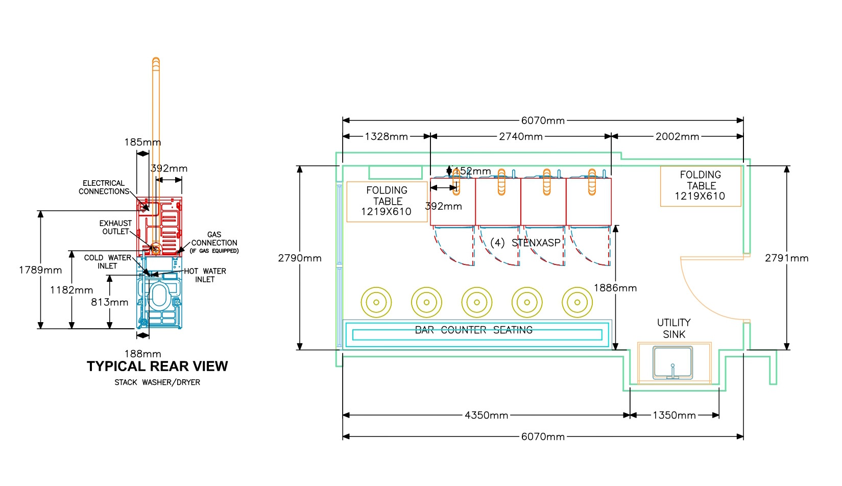
Nos encargamos de estudiar y dimensionar los requerimientos técnicos y operativos de cada proyecto, entregando un diseño profesional y detallado que incluye:
- Propuesta Layout
- Planos con distribución y conexiones
- Requerimientos eléctricos, hidráulicos, de ventilación y extracción de vahos
- Render 3D
Contáctanos y te ayudamos a proyectar una solución moderna, eficiente y sin inconvenientes para tus futuros residentes.




